0
Réf : 344675680

Lotissement Exclusif à Balaruc-les-Bains : 4 Terrains constructibles et 1 Maison prête à emménager

Balaruc-les-Bains (34540)
249 000 €

A propos de ce bien

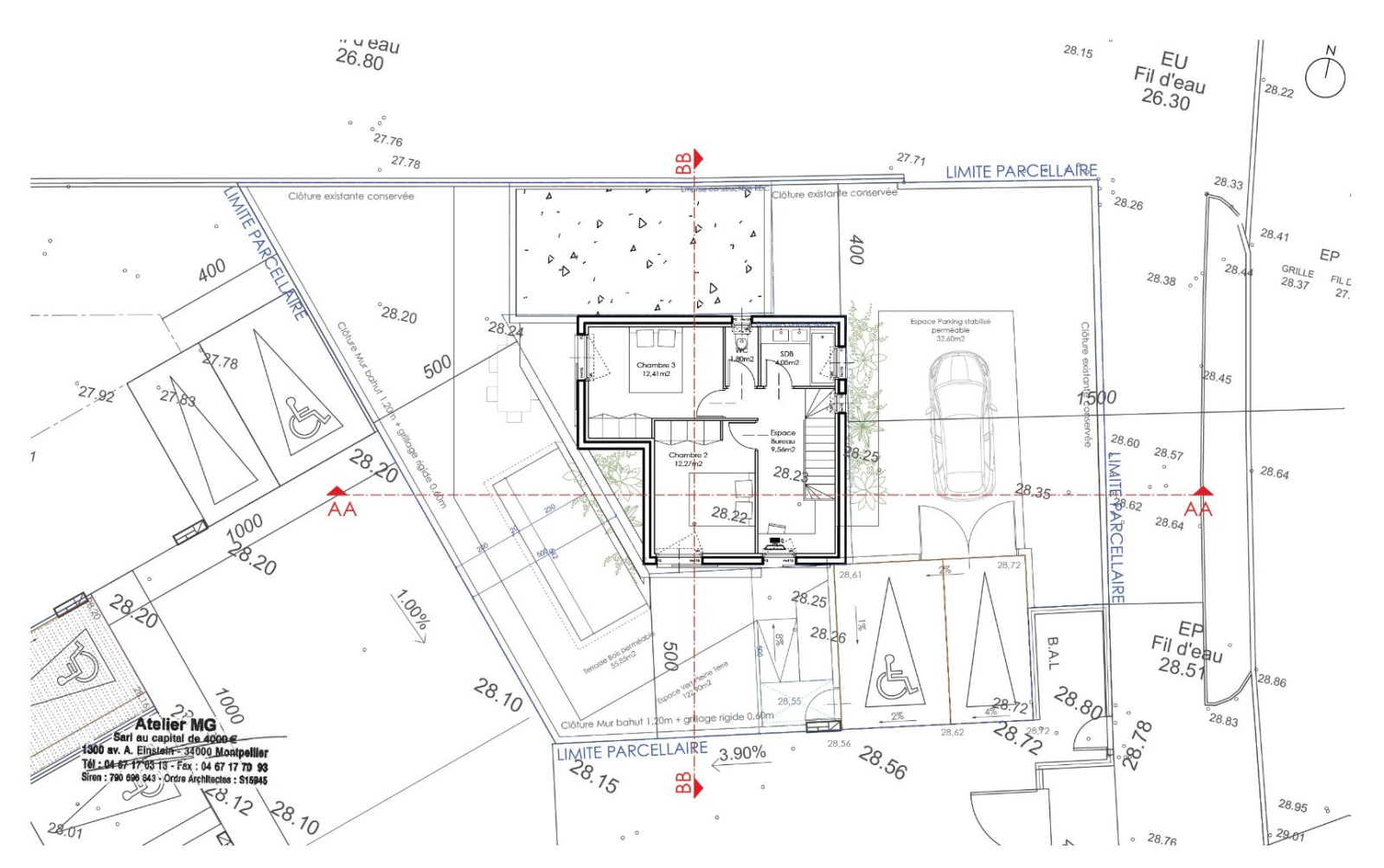
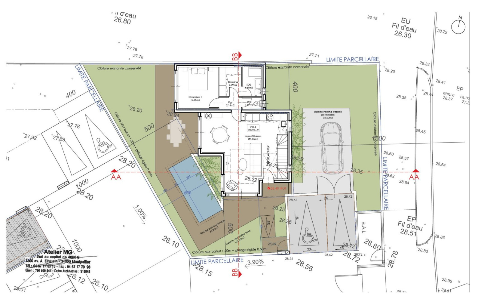
Votre rêve de posséder une propriété exceptionnelle dans l'oasis thermale de Balaruc-les-Bains devient réalité ! Nous sommes ravis de vous présenter un lotissement offrant une opportunité unique de construire la maison de vos rêves ou d'emménager immédiatement dans une maison exceptionnelle. - Lot 1 : Terrain de 422 m² - 299 000? - Lot 2 : Terrain de 350 m² - 249 000? - Lot 3 : Terrain de 378 m² - 269 000? - Lot 4 : Terrain de 476 m² - 329 000? - Lot 5 : Maison de 180 m² + Terrain de 851 m² - 695 000? Pour plus d'informations et pour planifier une visite, contactez-nous dès maintenant. Saisissez votre chance de vivre le style de vie dont vous avez toujours rêvé à Balaruc-les-Bains !

Descriptif du bien

TRAD_PAMPERO_Caracteristique Valeurs
Code postal 34540
surface terrain 352 m²
TRAD_PAMPERO_Caracteristique Valeurs
Mode de chauffage Autre
Type de chauffage Autre
Format de chauffage AUTRE
Murs mitoyens -1
Raccordement eau OUI
Raccordement électricité OUI
TRAD_PAMPERO_Caracteristique Valeurs
Prix de vente 249 000 €
Les honoraires d'agence seront intégralement à la charge du vendeur  
Ce bien vous intéresse ?
Fieldset par défaut
Fieldset par défaut
Validation

* Champs obligatoires

Contacter l'agence
Validation
Les informations recueillies sur ce formulaire sont enregistrées dans un fichier informatisé par La Boite Immo agissant comme Sous-traitant du traitement pour la gestion de la clientèle/prospects de l'Agence / du Réseau qui reste Responsable du Traitement de vos Données personnelles. La base légale du traitement repose sur l'intérêt légitime de l'Agence / du Réseau. Elles sont conservées jusqu'à demande de suppression et sont destinées à l'Agence / au Réseau. Conformément à la loi « informatique et libertés », vous disposez des droits d’accès, de rectification, d’effacement, d’opposition, de limitation et de portabilité de vos données. Vous pouvez retirer votre consentement à tout moment en contactant directement l’Agence / Le Réseau. Consultez le site https://cnil.fr/fr pour plus d’informations sur vos droits. Si vous estimez, après avoir contacté l'Agence / le Réseau, que vos droits « Informatique et Libertés » ne sont pas respectés, vous pouvez adresser une réclamation à la CNIL. Nous vous informons de l’existence de la liste d'opposition au démarchage téléphonique « Bloctel », sur laquelle vous pouvez vous inscrire ici : https://www.bloctel.gouv.fr Dans le cadre de la protection des Données personnelles, nous vous invitons à ne pas inscrire de Données sensibles dans le champ de saisie libre.
Ce site est protégé par reCAPTCHA, les Politiques de Confidentialité et les Conditions d'Utilisation de Google s'appliquent.