0
Réf : 347035597
Coup de coeur

Terrain à batir de 1210 m²

Balaruc-les-Bains (34540)
530 000 €

A propos de ce bien

Côté Balaruc-Les-Bains,

Venez découvrir ce terrain constructible rare dans d'une surface de 1210 m² au coeur du quartier de la Rêche.

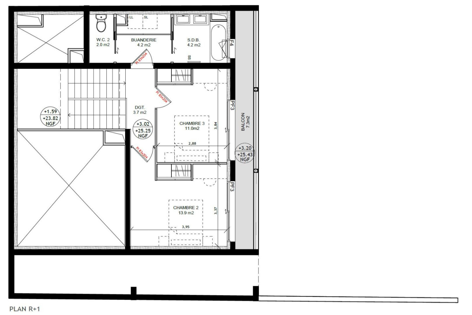
Le projet prévoit la réalisation d'un logement de type 4 sur 3 demi-niveaux, d'une superficie habitable de 119,9m².

Il prévoit également la rénovation du garage de 34,7m², la construction d'une piscine enterrée de 4x 8m ainsi que de nombreuses terrasses.

La surface utile résultante de ces espaces annexes est portée à 164,5m².

La maison à bâtir disposera d'une vue somptueuse sur l'étang de Thau et la ville de Sète.

Le terrain est vendu viabilisé.

Descriptif du bien

TRAD_PAMPERO_Caracteristique Valeurs
Code postal 34540
surface terrain 1 210 m²
Vue D?gag?e, Etang
TRAD_PAMPERO_Caracteristique Valeurs
Mode de chauffage Autre
Type de chauffage Autre
Format de chauffage AUTRE
Murs mitoyens -1
Exposition Sud-Ouest
Terrain piscinable OUI
Terrain Cloturé OUI
Raccordement eau OUI
Raccordement électricité OUI
TRAD_PAMPERO_Caracteristique Valeurs
Prix de vente 530 000 €
Les honoraires d'agence seront intégralement à la charge du vendeur  
Ce bien vous intéresse ?
Fieldset par défaut
Fieldset par défaut
Validation

* Champs obligatoires

Contacter l'agence
Validation
Les informations recueillies sur ce formulaire sont enregistrées dans un fichier informatisé par La Boite Immo agissant comme Sous-traitant du traitement pour la gestion de la clientèle/prospects de l'Agence / du Réseau qui reste Responsable du Traitement de vos Données personnelles. La base légale du traitement repose sur l'intérêt légitime de l'Agence / du Réseau. Elles sont conservées jusqu'à demande de suppression et sont destinées à l'Agence / au Réseau. Conformément à la loi « informatique et libertés », vous disposez des droits d’accès, de rectification, d’effacement, d’opposition, de limitation et de portabilité de vos données. Vous pouvez retirer votre consentement à tout moment en contactant directement l’Agence / Le Réseau. Consultez le site https://cnil.fr/fr pour plus d’informations sur vos droits. Si vous estimez, après avoir contacté l'Agence / le Réseau, que vos droits « Informatique et Libertés » ne sont pas respectés, vous pouvez adresser une réclamation à la CNIL. Nous vous informons de l’existence de la liste d'opposition au démarchage téléphonique « Bloctel », sur laquelle vous pouvez vous inscrire ici : https://www.bloctel.gouv.fr Dans le cadre de la protection des Données personnelles, nous vous invitons à ne pas inscrire de Données sensibles dans le champ de saisie libre.
Ce site est protégé par reCAPTCHA, les Politiques de Confidentialité et les Conditions d'Utilisation de Google s'appliquent.