0
Réf : V440017822

Local commercial de 963 m2 sur un terrain de 2 300 m2

Villeneuve-lès-Béziers (34420)
936 000 €

A propos de ce bien

Côté Villeneuve-lès-Béziers,

Venez découvrir cet emplacement avec un fort potentiel.

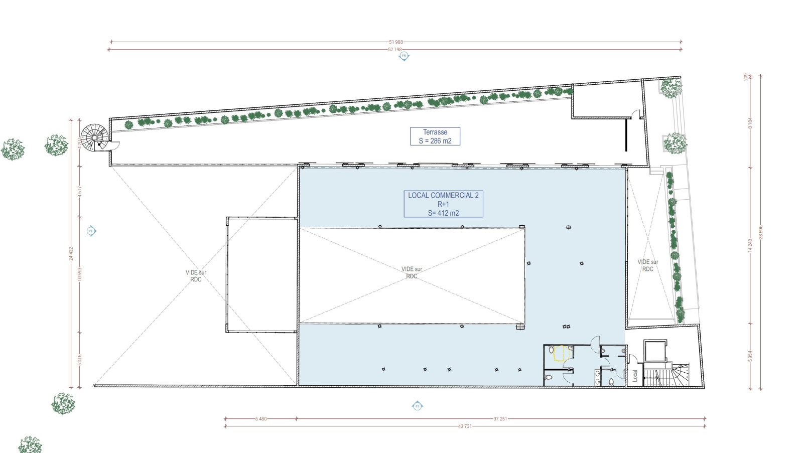
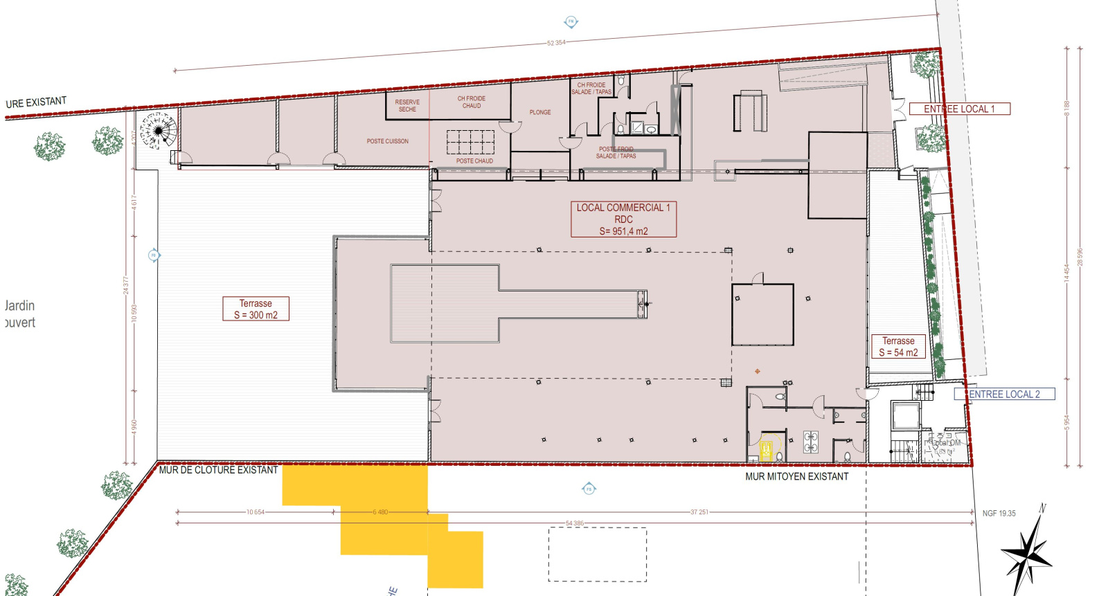
À ce jour, il s'agit d'un local commercial de 963 m2 en R+1 : 551 m2 en rez-de-chaussée et 412 m2 à l'étage. Il s'agit d'une ancienne discothèque où la totalité de l'intérieur du bien a été détruit pour ne laisser que la structure.

Par ailleurs, un permis de construire a été déposé, obtenu et purgé pour réaliser un local commercial d'une surface totale de 951,40 m2 au rez-de-chaussée avec une terrasse de 300 m2 donnant sur un jardin aménagé de 881,13 m2. À l'étage, la surface est identique à l'existant, soit 412 m2 avec l'accès à une terrasse de 286 m2.

Ainsi, le nouveau projet offre une surface projetée de 1 363,40 m2 avec en sus une surface de terrasse de 640 m² et un jardin de 881.13 m2.

Cet emplacement, ce local et le permis offrent donc la possibilité de créer un établissement hors du commun.

Forte visibilité, à proximité des grands axes, zone en cours de développement.

Descriptif du bien

TRAD_PAMPERO_Caracteristique Valeurs
Type de transac Local commercial
Code postal 34420
Surface habitable (m²) 963 m²
Etage 1
Nombre de niveaux 1
Superficie (m²) 963
TRAD_PAMPERO_Caracteristique Valeurs
Prix de vente honoraires inclus 936 000 €
Les honoraires d'agence seront intégralement à la charge du vendeur  
Taxe foncière annuelle 15 493 €
Ce bien vous intéresse ?
Fieldset par défaut
Fieldset par défaut
Validation

* Champs obligatoires

Contacter l'agence
Validation
Les informations recueillies sur ce formulaire sont enregistrées dans un fichier informatisé par La Boite Immo agissant comme Sous-traitant du traitement pour la gestion de la clientèle/prospects de l'Agence / du Réseau qui reste Responsable du Traitement de vos Données personnelles. La base légale du traitement repose sur l'intérêt légitime de l'Agence / du Réseau. Elles sont conservées jusqu'à demande de suppression et sont destinées à l'Agence / au Réseau. Conformément à la loi « informatique et libertés », vous disposez des droits d’accès, de rectification, d’effacement, d’opposition, de limitation et de portabilité de vos données. Vous pouvez retirer votre consentement à tout moment en contactant directement l’Agence / Le Réseau. Consultez le site https://cnil.fr/fr pour plus d’informations sur vos droits. Si vous estimez, après avoir contacté l'Agence / le Réseau, que vos droits « Informatique et Libertés » ne sont pas respectés, vous pouvez adresser une réclamation à la CNIL. Nous vous informons de l’existence de la liste d'opposition au démarchage téléphonique « Bloctel », sur laquelle vous pouvez vous inscrire ici : https://www.bloctel.gouv.fr Dans le cadre de la protection des Données personnelles, nous vous invitons à ne pas inscrire de Données sensibles dans le champ de saisie libre.
Ce site est protégé par reCAPTCHA, les Politiques de Confidentialité et les Conditions d'Utilisation de Google s'appliquent.