0
Réf : O190017862

À Sète, appartement neuf avec terrasse 3 pièces à vendre 359000 €

Sète (34200)
359 000 €

A propos de ce bien

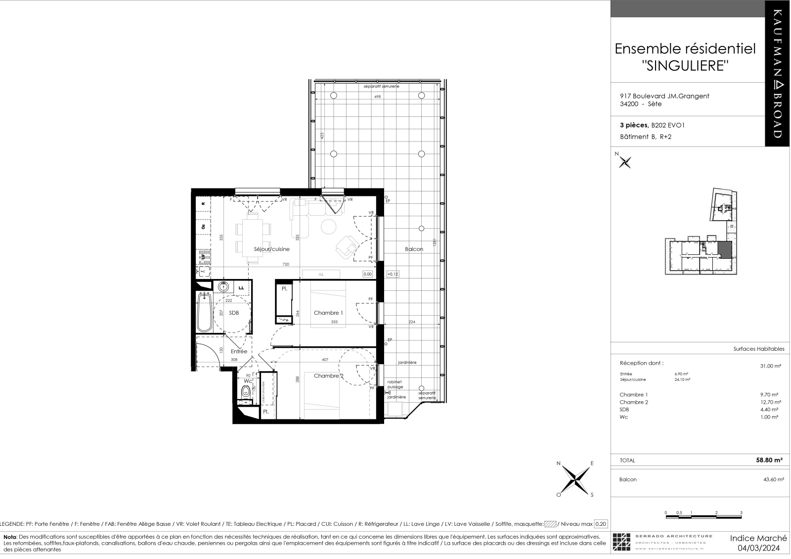
À Sète, placement immobilier réussi avec cet appartement disposant d'une jolie terrasse extérieure bien placé et parfait pour payer moins d'impôts. Dans un nouvel immeuble neuf de qualité qui sera terminé en 2025 aux normes d'accessibilité. Il s'agit d'un appartement se trouvant au deuxième niveau d'un immeuble sur 4 étages ; les déplacements quotidiens sont facilités par l'ascenseur. IMOBOOK est à votre disposition si vous voulez plus d'informations ou avez besoin d'aide dans votre recherche de logement. Ce domicile conviendra à un investisseur. Habitation composée d'une salle de bain, un espace cuisine, un coin salon de 24.1m² et 2 chambres. La surface plancher habitable développe 58.8m² en loi Carrez. Le calme du lieu est garanti grâce aux fenêtres à double vitrage. Vous assure des coûts réduits de consommation énergétique grâce aux normes du label de bâtiment à basse consommation. Le bien s'accompagne d'une terrasse occupant 41.3m², ce qui porte la surface à vivre à 100.1m². Il s'accompagne de 2 emplacements de parking privatifs.

Descriptif du bien

TRAD_PAMPERO_Caracteristique Valeurs
Code postal 34200
Surface habitable (m²) 58,80 m²
Surface loi Carrez (m²) 58,80 m²
Nombre de chambre(s) 2
Nombre de pièces 3
Etage 2
Ascenseur OUI
TRAD_PAMPERO_Caracteristique Valeurs
Nb de salle de bains 1
Cuisine Américaine
Mode de chauffage Electrique
Type de chauffage Autre
Format de chauffage Individuel
Visiophone OUI
Terrasse OUI
Exposition Nord-Est
Année de construction 2025
Quartier BAS ST CLAIR
TRAD_PAMPERO_Caracteristique Valeurs
Copropriété OUI
nombre de lots 43
TRAD_PAMPERO_Caracteristique Valeurs
Prix de vente 359 000 €
Les honoraires d'agence seront intégralement à la charge du vendeur  
Ce bien vous intéresse ?
Fieldset par défaut
Fieldset par défaut
Validation

* Champs obligatoires

Contacter l'agence
Validation
Les informations recueillies sur ce formulaire sont enregistrées dans un fichier informatisé par La Boite Immo agissant comme Sous-traitant du traitement pour la gestion de la clientèle/prospects de l'Agence / du Réseau qui reste Responsable du Traitement de vos Données personnelles. La base légale du traitement repose sur l'intérêt légitime de l'Agence / du Réseau. Elles sont conservées jusqu'à demande de suppression et sont destinées à l'Agence / au Réseau. Conformément à la loi « informatique et libertés », vous disposez des droits d’accès, de rectification, d’effacement, d’opposition, de limitation et de portabilité de vos données. Vous pouvez retirer votre consentement à tout moment en contactant directement l’Agence / Le Réseau. Consultez le site https://cnil.fr/fr pour plus d’informations sur vos droits. Si vous estimez, après avoir contacté l'Agence / le Réseau, que vos droits « Informatique et Libertés » ne sont pas respectés, vous pouvez adresser une réclamation à la CNIL. Nous vous informons de l’existence de la liste d'opposition au démarchage téléphonique « Bloctel », sur laquelle vous pouvez vous inscrire ici : https://www.bloctel.gouv.fr Dans le cadre de la protection des Données personnelles, nous vous invitons à ne pas inscrire de Données sensibles dans le champ de saisie libre.
Ce site est protégé par reCAPTCHA, les Politiques de Confidentialité et les Conditions d'Utilisation de Google s'appliquent.