0
Réf : O190011568

Grand appartement avec 2 pièces à vendre 224000 € à Sète

Sète (34200)
224 000 €

A propos de ce bien

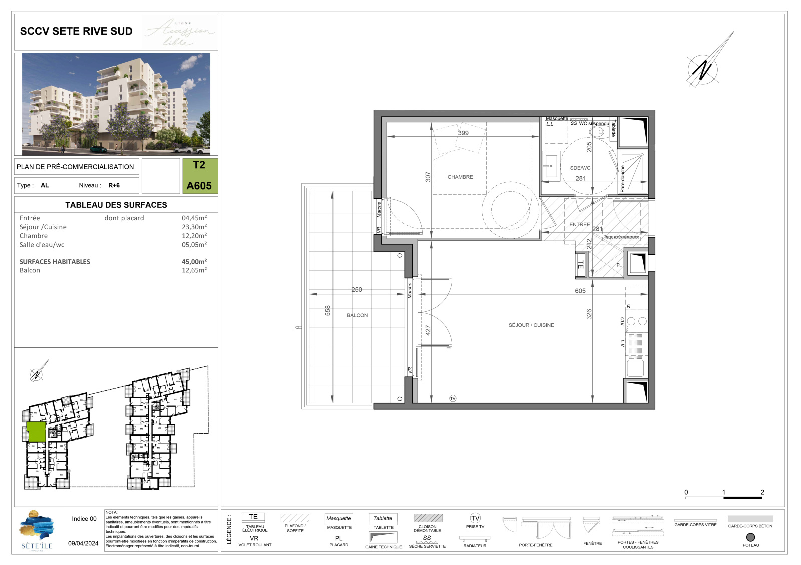
À Sète, placement immobilier réussi avec cet appartement avec une chambre et une large terrasse profonde et agréable. Dans un beau programme neuf de qualité qui sera livré en 2026 avec accessibilité PMR. Si vous voulez plus d'informations ou avez besoin d'aide dans votre recherche de logement, notre agence immobilière se tient à votre disposition. Cet appartement conviendra à un investisseur. Ce bien mesurant 45m² comprend une salle d'eau, un coin salon de 23.3m², une chambre et un espace cuisine. La tranquillité des occupants est assurée par le double vitrage. Satisfait aux dernières normes imposées par la réglementation en matière de construction label de bâtiment à basse consommation énergétique. Pour profiter de l'extérieur, vous disposerez d'une terrasse d'une surface de 12.65m² pour bronzer, ce qui porte la superficie exploitable à 57.65m². Il s'agit d'une propriété au sixième étage dans un bâtiment sur 8 niveaux ; présence d'un ascenseur dans la cage d'escalier. Elle donne accès à un parking.

Descriptif du bien

TRAD_PAMPERO_Caracteristique Valeurs
Code postal 34200
Surface habitable (m²) 45 m²
Surface loi Carrez (m²) 45 m²
Nombre de chambre(s) 1
Nombre de pièces 2
Etage 6
Nombre de niveaux 1
Ascenseur OUI
TRAD_PAMPERO_Caracteristique Valeurs
Nb de salle d'eau 1
Cuisine Américaine
Type de cuisine Equipée
Mode de chauffage Géothermie
Type de chauffage Air pulsé
Format de chauffage Collectif
Interphone NON
Visiophone OUI
Balcon NON
Loggia NON
Terrasse OUI
Cave NON
Exposition Sud-Ouest
Année de construction 2026
TRAD_PAMPERO_Caracteristique Valeurs
Copropriété OUI
nombre de lots 127
TRAD_PAMPERO_Caracteristique Valeurs
Prix de vente 224 000 €
Les honoraires d'agence seront intégralement à la charge du vendeur  
Ce bien vous intéresse ?
Fieldset par défaut
Fieldset par défaut
Validation

* Champs obligatoires

Contacter l'agence
Validation
Les informations recueillies sur ce formulaire sont enregistrées dans un fichier informatisé par La Boite Immo agissant comme Sous-traitant du traitement pour la gestion de la clientèle/prospects de l'Agence / du Réseau qui reste Responsable du Traitement de vos Données personnelles. La base légale du traitement repose sur l'intérêt légitime de l'Agence / du Réseau. Elles sont conservées jusqu'à demande de suppression et sont destinées à l'Agence / au Réseau. Conformément à la loi « informatique et libertés », vous disposez des droits d’accès, de rectification, d’effacement, d’opposition, de limitation et de portabilité de vos données. Vous pouvez retirer votre consentement à tout moment en contactant directement l’Agence / Le Réseau. Consultez le site https://cnil.fr/fr pour plus d’informations sur vos droits. Si vous estimez, après avoir contacté l'Agence / le Réseau, que vos droits « Informatique et Libertés » ne sont pas respectés, vous pouvez adresser une réclamation à la CNIL. Nous vous informons de l’existence de la liste d'opposition au démarchage téléphonique « Bloctel », sur laquelle vous pouvez vous inscrire ici : https://www.bloctel.gouv.fr Dans le cadre de la protection des Données personnelles, nous vous invitons à ne pas inscrire de Données sensibles dans le champ de saisie libre.
Ce site est protégé par reCAPTCHA, les Politiques de Confidentialité et les Conditions d'Utilisation de Google s'appliquent.